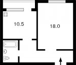
Цена 473860 ГРНГотовностьКвартира В эксплуатацииМесторасположениеКиев, Деснянский район, Радунская ул., 3, Деснянский р-н, ТроещинаОсновные данныеЭтаж / этажность: 6 / 16 Общая / жилая / кухня: 43 / 18 / 10 ПланировкаСерия АППС Люкс :: 1-комнатная(2) .. Дополнительные сведенияРадунская ул., 3, 6/16 эт., АППС-люкс, 43/18/10, кафель, кордиционер, бойлер ,лодж. застекл., обшита вагонкой , отличная транспортная развязка - 464000грн.
Т. - (66) 943-04-08, (98) 221-38-63
Ремонт: косметика Балконы: лоджия застеклена
Контактная информацияПаламаренко Олена Вікторівна 3311303 80669430408 palam@ua.fm
|